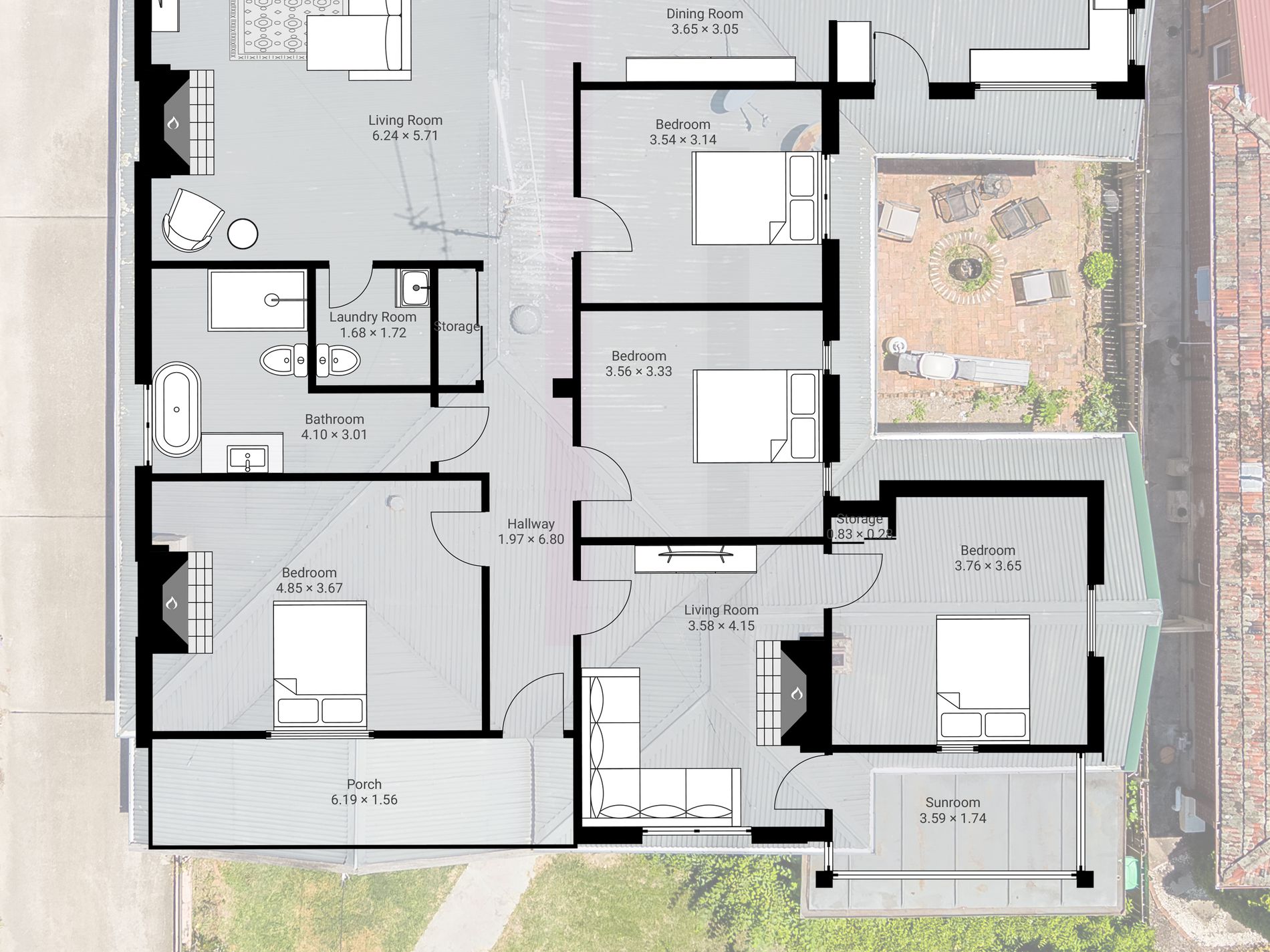
Nestled in a prime central location, this character-filled residence is bursting with charm and opportunity. Offering four generously-sized bedrooms and multiple separate living areas, this home perfectly combines space and style.
**Free SMS the keyword "156rocket" to 0437 042 859 to receive a link to the digital Property Brochure which includes Contract of Sale, Rental Certificate, Council Rates and more**
With its abundance of personality and solid foundation, this home provides endless possibilities to make it truly your own.
Features include:
* Step inside and be greeted by stunning high ceilings, ornate cornices and decorative ceiling plasterwork - showcasing the original characteristics and charm of the home.
* Multi-purpose living area off the entryway, leading into a sizeable bedroom and separate sunroom. Featuring a fire place, this space provides the perfect parents retreat and offers the possibility of being converted into an amazing master suite with a conversion of the sunroom into a walk-in robe and ensuite.
* Three additional bedrooms, all great sizes. One bedroom features a fireplace and stunning lead-light windows at the front of the home.
* Huge lounge area offering a wood fire, reverse-cycle split system, and ceiling fan, ensuring comfort year-round. Stunning French doors provide access into the backyard.
* Dining area flows seamlessly from the lounge into the kitchen, perfect for family dining and entertaining.
* Spacious U-Shaped kitchen featuring a gas cooktop, electric wall oven, dishwasher and plenty of storage space.
* Beautifully renovated bathroom featuring a frameless shower, freestanding bath tub, vanity and toilet.
* Private courtyard accessible from the kitchen providing an ideal fire pit and bbq area.
* Spacious laundry with an additional toilet for convenience.
* The North-East aspect provides abundant natural light in both the sunroom and private porch at the front of the property.
* Single carport with roller door.
This property offers incredible value and will be snapped up by a savvy purchaser. Act now to secure your piece of the CBD. Contact us today to arrange an inspection.
Features
- Air Conditioning
- Gas Heating
- Split-System Air Conditioning
- Split-System Heating
- Courtyard































